

|
||||||||||||||||||||||||||||||||||||||||||||||||||||||||||||||||||||||||
|
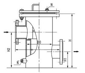
產品介紹 一、高低平底籃式過濾器--產品概述
SRBB 高低平底籃式過濾器主要由擋管、筒體、濾籃、法蘭、法蘭蓋及緊固件組成。當流體通過筒體進入濾籃后,固體雜質顆粒被阻擋在濾籃內,而潔凈的流體通過濾籃過濾由過濾器出口排出。當需要清洗時,旋開筒體底部螺塞排除流體,拆卸法蘭蓋,取出濾籃,清洗后重新放入即可。 二、高低平底籃式過濾器--主要尺寸
上兆閥門其他產品: 閘 閥 截止閥 球 閥 蝶 閥 緊急切斷閥 電磁閥 水力控制閥 止回閥 刀型閘閥 旋塞閥 過濾器 減壓閥 疏水閥 隔膜閥 調節閥 阻火器 呼吸閥 燃氣閥門 冶金閥門 | ||||||||||||||||||||||||||||||||||||||||||||||||||||||||||||||||||||||||
相關產品 |
||||||||||||||||||||||||||||||||||||||||||||||||||||||||||||||||||||||||