

|
|||||||||||||||||||||||||||||||||||||||||||||||||
|
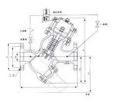
產品介紹 一、YQ98001型過濾活塞式可調減壓閥--原理: YQ98001型過濾活塞式可調減壓閥由比托管傳遞壓差信號給流導閥, 限流閥和針閥執行兩路控控制. 來控制主閥活塞上腔的壓力. 通過限流導閥調節摞栓的調節. 使閥后流量達到設定值; 活塞下腔有節流孔與下游相通. 可綬沖閥門的關閉, 主閥兩端壓力差是閥門啟. 閉的驅動能源。主要用于空調. 給排水. 消防和各類工礦企業等供水管網口需要過濾而且對流量實現控制的場所和工況。能將上游壓力降低至所設置的下游壓力,無論怎樣改變上游的壓力和流量,其預先設定的下游壓力均能夠保持不變。 產品外觀圖
二、YQ98001型過濾活塞式可調減壓閥--連接尺寸:
三、YQ98001型過濾活塞式可調減壓閥--特點: 1.畢托管向極敏感的限流導閥傳遞壓信號, 無孔板孔口節流, 無壓力損失, 節能. 五、YQ98001型過濾活塞式可調減壓閥--主要參數:
六、YQ98001型過濾活塞式可調減壓閥--安裝方法及連接要求: 一、根據工況的減壓特性,必須在該閥前安裝 閘閥; 二、方便日后對該閥進行檢修工作.必須在減壓閥后安裝可曲繞軟連接; 三‘最佳安裝方式為臥式,其它方位也可以接受; 四、必須留出足夠的工作空間方便檢修; 五、吊裝時采用有效措施進行.也可利用該閥吊環進行。 七、YQ98001型過濾活塞式可調減壓閥--安裝圖:
減壓穩壓閥 蒸汽減壓閥 活塞式蒸汽減壓閥 平衡閥 自力式壓差控制閥 限流止回閥 緊急關閉閥 壓差旁通閥 700X多功能水泵控制閥 水力電動控制閥 泄壓閥/持壓閥 流量控制閥 緩閉止回閥 300X緩閉止回閥 DN100緩閉止回閥 DN100口徑緩閉止回閥 DN200口徑緩閉止回閥 DN300口徑緩閉止回閥 DN500口徑緩閉止回閥 鑄鋼緩閉止回閥 不銹鋼緩閉止回閥 鑄鐵緩閉止回閥 球墨鑄鐵緩閉止回閥 上兆閥門其他產品: 閘 閥 截止閥 球 閥 蝶 閥 緊急切斷閥 電磁閥 水力控制閥 止回閥 刀型閘閥 旋塞閥 過濾器 減壓閥 疏水閥 隔膜閥 調節閥 阻火器 呼吸閥 燃氣閥門 冶金閥門 | |||||||||||||||||||||||||||||||||||||||||||||||||
相關產品 |
|||||||||||||||||||||||||||||||||||||||||||||||||